Vendita €225,000.00 - Residenziale
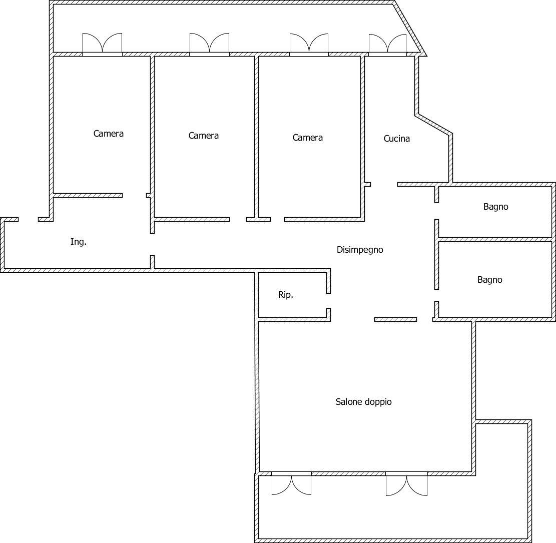
Via Matteo Silvaggio, inserita in contesto condominiale signorile edificato negli anni 70′, dotato di servizio di portineria e doppio ascensore, all’interno di ampio cortile condominiale privato, con accesso dalla via Cataldo Parisio e da via Tommaso Aversa, in zona strategica e altamente residenziale, adiacente alla via Pacinotti, via Aurispa, a pochi passi da via Malaspina, da imbocco circonvallazione pur mantenendosi a pochi minuti di distanza da tutto il centro città, in zona servita sotto ogni punto di vista che permette di evitare al minimo utilizzo di auto o mezzi di trasporto, disponiamo di ampio 5 vani posto al 9° piano in stabile di 11, l’immobile è composto internamente da: ampio ingresso, salone doppio, 3 ampie camere, cucina, 2 bagni e ampio ripostiglio, l’immobile gode inoltre di 2 ampi balconi che offrono una splendida vista su tutta la città e conferiscono luminosità ad ogni angolo dell’immobile considerando la presenza di apertura in ogni ambiente, dotato di impianto di riscaldameno centralizzato, lo stesso si presenta in condizioni originali pertanto da ristrutturare, la struttura in cemento armato e l’assenza di pilastri in punti centrali dell’immobile permettono un eventuale facile rimodulazione degli spazi qualora dovesse risultare necessario, possibilità di parcheggio A CAPIENZA nel cortile condominiale, e ampio spazio per moto e scooter, immobile ideale per famiglia che necessità di ampi spazi e che vuole avere un immobile personalizzato in base ai propri gusti. Per appuntamenti previo contatto telefonico.
Dettagli Aggiuntivi
- Salone Doppio: 1
- Ripostiglio: 1
- Cucina media: 1


